Топ-100
Ваш город: Миасс

Hunter WA310/22NE-421FC3S Стенд развал-схождения

(0)
Код товара: WA310/22NE-421FC3S
HUNTER
2 390 000 ₽ / шт.
До конца акции осталось:
00дн.
00час.
00мин.
Подарок при покупке
Дарим подарок при покупке данного товара
Выбрать подарок

Компьютерный стенд регулировки углов установки колес Hunter WA310/20LE-421FC3S

Основные особенности:

  • Персональный компьютер (WА серия). Работает под управлением операционной системы Windows. Программное обеспечение WinAlign®. Удобные диагностика и эксплуатация. Возможность быстрого восстановления без участия сервисных представителей. Оснащен устройствами обработки видео, вывода и обработки звука. Возможность сетевого подключения. Поддерживает смену раскладки клавиатуры в процессе работы. Удобное хранение и вывод информации о заказах. Возможность выбора версии комплектации программного обеспечения. Возможность подключения дополнительного оборудования для выполнения дополнительных процедур (Romess для измерения высоты посадки МВ, CodeLink для обнуления датчика положения рулевого колеса для корректной работы системы стабилизации курсовой устойчивости, дополнительной камеры для регулировки систем ADR, ACC, LDW). Возможность ОЕМ комплектации и доукомплектации (возможность приобретения "дилерского" стенда с последующей возможностью дополнения функциями "дилерского" стенда другого автопроизводителя). Возможность выбора "глубины" автоматического сопровождения в процессе измерений и регулировок. Доступ на WebSpecs (интернет-база данных VID спецификаций автомобилей).
  • Исполнение с кабинетом мобильным, экономичным с металлическим верхом (поставляется в разобранном виде). Размеры кабинета с монитором (ВхДхШ): 1753 мм х 584 мм х 660 мм. Принтер входит в комплект.
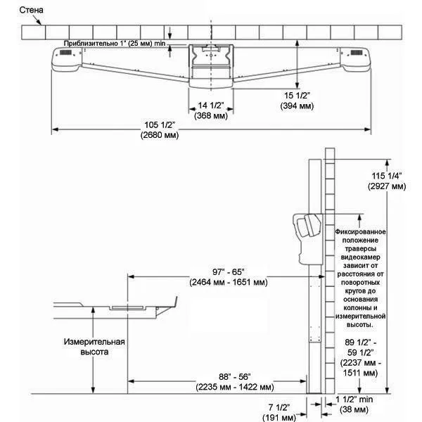
  • Стандартное напольное исполнение. Траверса видеокамер не подвижна. Подойдет для совместного использования стенда с подъемником.
  • Компенсация биений "докатыванием" автомобиля вперед:
    • Закатите автомобиль на подъемник ("смотровую яму") не доезжая до передних поворотных кругов;
    • Установите колёсные упоры и поднимите автомобиль (для подъемника);
    • Проверьте давление в шинах и найдите спецификацию автомобиля в базе данных;
    • Установите колесные мишени на колёса автомобиля;
    • Прокатите автомобиль вперед на передние поворотные круги;
    • Выньте шплинты из передних поворотных кругов и задних сдвижных пластин
  • Полная база данных спецификаций автомобилей европейского, японского и китайского рынков. Спецификации получены непосредственно от производителей.
  • Бесплатное обновление базы данных VID спецификаций автомобилей и доступ на WebSpecs в год покупки и следующий год после покупки.


Технические характеристики

  • Персональный компьютер: ПО WinAlign®
  • 3-D стенд : Датчики HawKeye Elite
  • Мобильный кабинет: Мобильный, экономичный
  • 4-х камерные датчики: HawKeye Elite HE421FC3ES
  • Стандартное напольное исполнение: FC
  • Компенсация докатыванием : есть
  • Трехмерные мишени: 4 шт.
  • Бесплатное обновление базы данных: 1 год
  • Бесплатный доступ на WebSpecs: 1 год
  • Принтер входит в комплект: да
  • Ограничения в выборе принтера: нет
  • Диапазон адаптеров колесных: 12 - 39 "
  • ЖК монитор: 21,5 "
  • Напряжение питания: 220 В
  • БЫСТРАЯ ПРОВЕРКА УУК: ЕСТЬ

Кабинет мобильный экономичный; ОС Windows; WinAlign Elite, WebSpecs, Photo/Video опция; Монитор LCD 21.5" с креплением; Мульти-D, 4 камеры, стандартное напольное исполнение, трехмерные (TD) мишени, адаптеры быстрого зажима; Круги поворотные.

Состав стенда

Компонент

Описание

1. Датчики Hawkeye Elite HE421FC3S

Стандартное напольное исполнение. Возможна совместная работа с любым типом WA кабинетов.

Используют Мульти-D технологию моделирования для получения точных измерений.

4 цифровые видеокамеры высокого разрешения непрерывно контролируют положение колесных мишеней в пространстве и обеспечивают мгновенную обработку получаемых данных и передачу результатов в консоль стенда.

4 трехмерные (TD) мишени:

  • Быстро распознаются камерами;
  • Обеспечивают больший угол видения по вертикали и горизонтали;
  • Компактные и легкие;
  • Имеют полимерные ударопрочные корпуса;
  • Не имеют электроники и не требуют калибровки.

4 адаптера быстрого зажима:

  • Захватывают за шину;
  • Быстро фиксируются с помощью пальцевого рычага;
  • Не имеют вращающихся рукояток;
  • Легкие и прочные;
  • Допускается несоосная установка.

Крюки для адаптеров быстросменные:

  • Для работы с колесами диаметром до 37";
  • Один тип используется приблизительно в 90% случаев.

Удлинители адаптеров быстрого зажима:

  • Для работы с колесами, имеющими глубоко расположенную или выступающую ступицу.
Манжеты защитные для адаптеров и удлинителей, 4+4 шт.

4 кронштейна хранения адаптеров с мишенями для монтажа на колонну, кабинет или стену, ножничный подъемник или стойки 4-х стоечного подъемника.

Режимы измерений:

  • «Базовая плоскость» - УУК автомобиля определяются относительно плоскости параллельной путям подъемника/ямы;
  • «Текущая плоскость» - УУК автомобиля определяются относительно плоскости образуемой мишенями.

Способы компенсации биений:

  • Прокатывание укороченное - самая быстрая процедура с функцией контроля грубых ошибок;
  • Прокатывание – быстрая процедура с дополнительной функцией контроля грубых ошибок;
  • Подъем осей – используется при невозможности или затруднении в выполнении прокатывания автомобиля или при регулировке «без колес». Мишени могут быть скомпенсированы в любом порядке.

2. Кабинет WA310E

Мобильный экономичный с металлическим верхом. Внешний вид может отличаться.

В комплектацию входят:

Фиксатор педали тормоза.

Фиксатор рулевого колеса.

3. Монитор LCD 21.5”*

Формат изображения 16:9. На экране отображаются дополнительные функции широкоэкранной версии ПО WinAlign. Комплект крепления к кабинету включен.

4. Компьютер* с ПО WinAlign Элит

В комплектацию входят:

  • Стандартная конфигурация компьютера;
  • Клавиатура с защитной плёнкой (рус./англ. язык);
  • Мышь оптическая;
  • 2 года бесплатных обновлений спецификаций автомобилей.
  • Диски ПО WinAlign Элит установочные;
  • Электронные ключи доступа;
  • Доступ WebSpecs;
  • DVD-Photo/Video опция;
  • Руководство пользователя;
  • Лицензия на использование ОС Microsoft Windows.

ПО WinAlign имеет крупнейшую базу данных спецификаций автомобилей c возможностью ее пополнения через Интернет (WebSpecs) и множество запатентованных функций регулировки и повышения производительности:

ExpressAlign® – Позволяет выполнять регулировку каждого автомобиля наиболее рационально. Анализирует полученные измерения и предлагает оптимальную последовательность действий с наименьшим количеством требуемых шагов.

WinToe® – Гарантирует правильное положение рулевого колеса без повторных регулировок и использования фиксатора руля. Регулировка схождения осуществляется по диаграммам «рулевых тяг»!!! и может выполняться с вывешенной осью.

База данных инструментов и регулировочных комплектов – Упрощает подбор необходимых для регулировки каждого автомобиля инструментов и комплектов и экономит требуемое для этого время.

Виртуальный вид – Наглядно представляет УУК автомобиля на трехмерной модели в режиме реального времени.

Fast caster/SAI – Позволяет получить данные по продольному, поперечному наклонам поворотного шкворня и прилежащему углу за одно измерение.

CAMM® (Монитор перемещения рычагов подвески) – Обеспечивает быструю и эффективную регулировку подвески на двойных поперечных рычагах с регулировочными шайбами, двойными эксцентриками или пазами. Пошаговые иллюстрации позволяют сделать все с первого раза.

Shim-Select® II – Быстро рассчитывает правильное положение шайбы переменной толщины, в зависимости от типа, для одновременной регулировки развала и схождения задних колес автомобиля. Не нужно обращаться к запутанным диаграммам и таблицам.

Регулировка без колес – Ускоряет процесс регулировки в случаях с ограниченным или неудобным доступом к регулировкам с установленным колесом.

Примечание: Требуются комплекты адаптеров 20-1978-1 и 20-2577-1.

ABC® (Автоматический калькулятор втулок) – Определяет размер и положение втулки для одновременной регулировки развала и продольного наклона передних колес пикапов/фургонов без затрат времени на нулевую втулку.

SBDA (Аудит кузов/подвеска) – Отображает положение кузова автомобиля относительно шасси для определения крена и необходимости кузовного ремонта.

Примечание: Требуются мишени высоты посадки 20-2050-1.

Измерение высоты посадки – Поддерживает автоматический ввод данных двумя способами:

  1. С помощью мишеней высоты посадки 20-2050-1 (высота отображается в реальном времени);
  2. С помощью электронного измерителя, встроенного в пульт ДУ.

Измерение симметрии – Обеспечивает мгновенный доступ к данным по симметрии и смещению осей для определения необходимости выполнения кузовного ремонта или выявления факта восстановления после аварии.

WinAlignTuner™ – Помогает выполнять настройку подвески автомобилей с модифицированной ходовой частью.
Примечание: Требуется комплект ПО 20-2004-1. Дополнительно рекомендуются дистанционный индикатор 30-418-1-X-XF и Bump Steer комплект лебедки 20-2011-1.

Видеобиблиотека – включает более 300 видеороликов, охватывающих все аспекты развал-схождения. Помогает при общении с клиентами, позволяет разобраться с необычными проблемами, делает механика более компетентным.

Режим осмотра «Укажи и щелкни» – Позволяет, используя более 4000 фотографий и иллюстраций, упростить инспекцию подвески и рулевого управления автомобиля.

Автоматическое распознавание вывешивания оси

AVH (Расширенные данные по управляемости автомобиля) – Помогает обнаружить скрытые проблемы, позволяет получить данные, объясняющие поведение автомобиля на дороге, или спрогнозировать его поведение. Доступны следующие измерения: плечо обката, смещение кастера, угол/смещение центральной линии кузова, диаметр разворота по центрам пятен контакта или внешним кромкам, крен кузова в повороте, свес кузова и др.

Примечание: Для большинства измерений требуются мишени высоты посадки 20-2050-1.

Распечатка данных – Помогает показать клиенту с помощью подробных цветных распечаток результат проделанной работы, а также объяснить о необходимости замены деталей и проведения ремонта.

CodeLink™ – Быстро и легко перенастраивает датчик угла положения рулевого колеса в соответствии с требованиями OEM для корректной работы системы стабилизации курсовой устойчивости.

Примечание: Требуется комплект 20-2813-1.

FIA – Система взаимодействия стенда и подъемника развал-схождения. Обладает следующими возможностями:

  1. Автоматическое включение камер при подъеме автомобиля на измерительную высоту;
  2. Автоматический контроль и управление сдвижными пластинами и поворотными кругами;
  3. Одновременная автоматическая настройка давления в шинах в соответствии со спецификациями.

Примечание: Требуется FIA-подъемник.

TouchRemote™ – Позволяет с помощью Apple iPhone, iPod touch и iPad устройств дистанционно работать с WinAlign, обеспечивая:

  • Отображение значений УУК в реальном времени;
  • Контроль и управление WinAlign;
  • Возможность просмотра регулировочных иллюстраций и изображений.

Примечание: Требуется к-т 20-2477-1, WinAlign 11.1 и бесплатное приложение "HunterTouchRemote" с iTunes®. Компьютер должен быть оснащен Wi-Fi адаптером.

Ассистент заезда - Позволяет безопасно и легко спозиционировать автомобиль на подъемнике/яме без посторонней помощи. Видеоинформация с веб-камеры выводится на экран монитора.

Примечание: Требуется веб-камера.

5. Круги поворотные

20-2531-1-S Круги поворотные механические изменяемой высоты для легковых автомобилей, 2 шт.

* - внешний вид может отличаться



Купить на официальном сайте стенд сход развал HUNTER WA310/22NE-421FC3S по низкой цене в Миассе


Документы

Отзывов пока что нет
Но вы можете исправить ситуацию. Расскажите другим покупателям о преимуществах и недостатках товара. Ваш отзыв поможет им сделать выбор.
Оставить отзыв
Оставить отзыв
Мы ожидаем от вас честный и корректный отзыв. Поэтому не публикуем отзывы не по теме, отзывы с нецензурными выражениями и оскорблениями, а также с сылками на другие сайты.
Отмена

Мы стараемся максимально лояльно подходить к выбору способов доставки товаров из нашего магазина, чтобы наши клиенты получали необходимое качество по наименьшей цене.

Курьером по городу

Курьером (пн-пт). Курьер доставит товар в день заказа с 18 до 21.00 (при условии, что заказ сформирован до 18.00), либо вечером следующего дня (если заказ сформирован после 18.00).

Самовывозом

Вы можете забрать заказанный на сайте товар в любой день и удобное Вам время. Часы работы и контактный телефон магазина можно узнать здесь. Забронированный товар будет дожидаться Вас в течении двух рабочих дней.

Отзывов пока что нет
Но вы можете исправить ситуацию. Расскажите другим покупателям о преимуществах и недостатках товара. Ваш отзыв поможет им сделать выбор.
Оставить отзыв
Оставить отзыв
Мы ожидаем от вас честный и корректный отзыв. Поэтому не публикуем отзывы не по теме, отзывы с нецензурными выражениями и оскорблениями, а также с сылками на другие сайты.
Отмена